June 2, 2022News
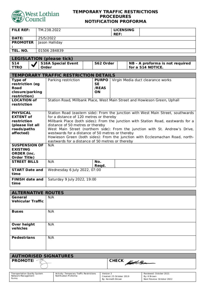
Between 7am on Wednesday 6th July and 7pm on Saturday 9th July, Virgin Media will be working on and Strathbrock Place. For more information, please view the image below.